LOOK DEV/CONCEPTS
FILM/TV
Music
IMMERSIVE/EXPERIENTIAL
COMMERCIALS
Resume
CONTACT
LOOK DEV/CONCEPTS
FILM/TV
Music
IMMERSIVE/EXPERIENTIAL
COMMERCIALS
Resume
CONTACT
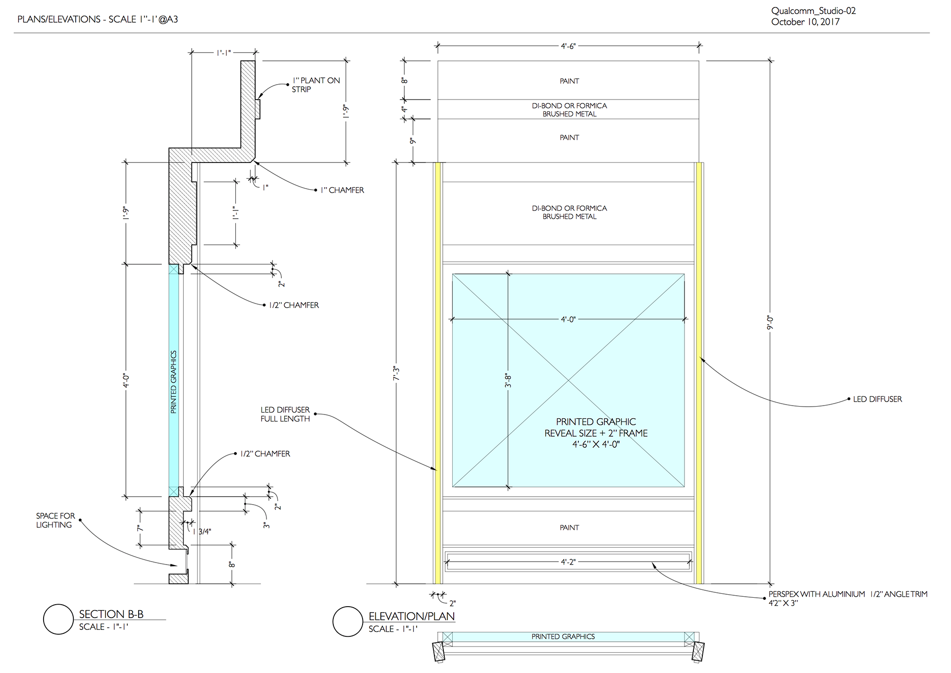
Design development
Studio build